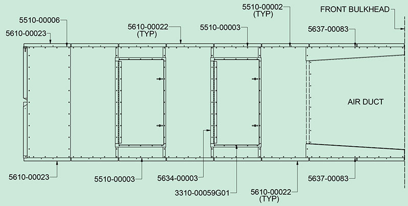
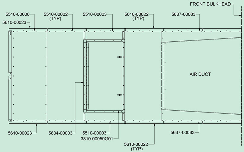
SQ12-20 Plenum Divider Kit / A & E Recycle Blocks

Copyright © 2014-2016 CTB, Inc. All rights reserved                                                                                                                                                                                                                        BLV815